「」有了这五套农村别墅设计图纸,你的房子想不出众都难!

文章图片

文章图片

文章图片

文章图片

文章图片

现在的农村 , 随着大家的生活水平越来越高 , 对于建房的类型和风格等都有了一定的要求 。
而要建美观大气的自建房 , 建房图纸是非常重要的 。 今天就为大家推荐五套农村自建房设计图纸 。
01 占地13x14二层自建别墅
图纸编号: jj364
别墅风格: 中式
占地面积: 175㎡
预估造价: 70万
别墅层数: 二层
建筑面积: 350㎡
建筑结构: 砖混结构
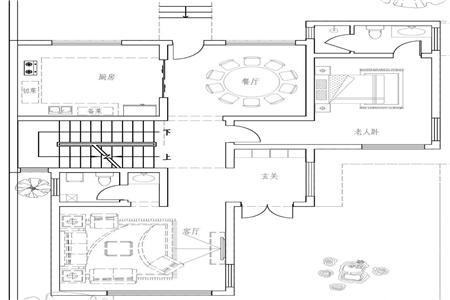
这是一套中式风格的二层自建别墅 。 门厅采用人字顶和石柱搭配 , 使整个房子的门面显得非常气派 , 进门一层通过天井 , 直入客厅 。
其次房间格局分左右两侧 , 一侧设置有餐厅、厨房、公共卫生间、卧室等;另一侧设置有主卧、公共卫生间、两间次卧等 。 房子空间设计比较有特点 , 生活动线有规律 。
二层上楼设置有客厅、主卧、书房、客卧、老人房、公共卫生间、两个方正露台 。 中间是可望向楼下的天井 。
房间的休闲区比较多 , 且二楼也设置了客厅 , 方便大人和孩子分别待客 。
房子整体呈现的个人空间比较多 , 家人各自的私密空间得到保护 , 非常人性化 。 且房子大面积采用玻璃 , 房子采光非常好 。
02 占地14x12三层带露台自建别墅
图纸编号: yg497
别墅风格:现代
占地面积:168㎡
预估造价: 62万
别墅层数: 三层
【「」有了这五套农村别墅设计图纸,你的房子想不出众都难!】建筑面积:360㎡
建筑结构:砖混结构
这是一套现代风格带露台的三层别墅 , 有些像海景房 。 木质台阶进门 , 一层设置有玄关、客厅、干湿分离的独立卫生间、卧室套间(带卫生间)、餐厅、厨房等 。
一层整体布局设计以方便为主 。 将待客和生活区域分开 , 且也可以在门外的室外空间休息 , 非常惬意 。
二层设置有主卧套间(带男、女分离的更衣室、小露台)、独立卫生间、书房、卧室套间(带卫生间和衣帽间)、大露台等 。
三楼设置有休闲、健身房、卧室套间(带卫生间和衣帽间)、卧室套间(带男、女分离的更衣室、小露台)、独立卫生间、大露台等 。
二楼三楼将休闲和娱乐做倒极致 。 生活设施齐备有特色 。 露台很多 , 家人各自都有独立休闲区 , 生活在这种房子里 , 舒适又惬意 。
03 占地12x14二层带庭院自建别墅
图纸编号: yg454
别墅风格:现代
占地面积: 163㎡
预估造价:42万
别墅层数:二层
建筑面积: 312㎡
建筑结构: 砖混结构
这也是一套现代风格的二层带庭院别墅 。 院子留出的空间比较大 , 进院门可设置池塘、葡萄架、绿化区(用于种植蔬菜或花草等均可)、休闲区等 。
- 桑叶农村里常见的桑树叶,除了喂蚕还有这用途,可惜很多人不知道
- 『』适合农村建的两层小别墅,简单精致,养老首选!
- 健身如何练出腹肌马甲线吗?这个夏天坚持练这5个动作,马甲线就有了
- 郑爽:有种“整容”叫郑爽卸妆,没有了眼妆之后,网友:还以为是个网红
- 搜狐新闻是农村的“补血菜”,也是“穷人的阿胶”,农村地里超多
- 豆果美食TB有了香煎土豆饼,爱心早餐省时做
- 二喜减脂餐TB营养师一周的备餐,太方便了!营养、储藏、加热的方法全有了
- 垂盆草在农村瓦房上,有“2种野草”珍贵,挖2棵回家种植,价值翻倍
- 北京日报客户端疼起来要命的“缠腰龙”有了疫苗,市民下半年可接种
- #橄榄核#普通人鉴宝和田玉真假,有了这个神器,其实过滤9成假货
