「」165平简欧风格设计,“流线型”的吊顶设计,还是第一次见!

文章图片

文章图片

文章图片

文章图片

文章图片

文章图片

文章图片

文章图片

文章图片

文章图片

文章图片

谈及现今时下的新房装修流行风格 , 莫不是现代简约风、清新北欧风、粗犷工业风就是极简日式调性 , 今天和大家一起来访位在台南安平的这套公寓时 , 仿若置身欧洲当地住所的典雅复古气息 , 而“流线型”的吊顶设计 , 令人眼睛为之一亮 。 敞阔明亮的优美环境 , 蕴藏着古典精致笔法 , 将具有经典样式的老件家具、以自然媒材勾勒的家器细腻揉合其中 , 在优雅间透散着慵懒气息 , 不失自在轻松生活感 。
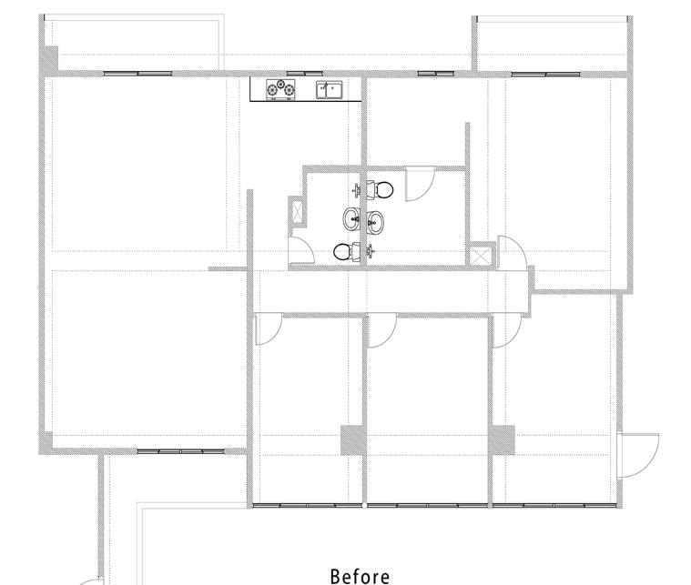
台南安平/室内165平米/格局3房2厅2卫/居住人数1大
原始格局vs改造后格局
从这个角度上看到 , 经典烟熏棕皮革沙发、欧式灯饰、藤编单椅与原木餐椅 , 同步于厨房点缀复古蓝调花砖、灯笼型马赛克壁砖 , 将风格相异的家具家饰与建材融合归整的方式构成宁静舒适画面 。
设计师将全室格局重新梳理 , 以开放式设计融贯客厅、餐厅、厨房及书房 , 彻底释放公共区域开阔视野 , 并将2间卧室合并成独立主卧室 , 另辟出全然开阔的生活区域 , 使各个空间皆能拥有最完善的规划和生活配置 。
客厅设计:宛若一张柔软布幕轻覆于天花板上 , 圆润起伏线条细腻包裹着贯穿于中央的横梁 , 律动曲度维持既有净高 , 并巧妙露出吊隐式冷气出风口 , 使敞阔的客餐厅均具备良好空调环境 , 在无形间将公共区域相互串联 , 开启清朗透亮的全景视野 。 这样的吊顶设计还是第一次见!
客厅上的沙发背景墙采以自然醇厚的深木材质 , 透过缜密计算线框间距比例 , 将带有柔美线条的典雅壁板对称开展 , 挥洒出精致均匀的立面景象 , 同时交错缀以古典壁灯与挂画 , 古朴气息的经典老件家具 , 使客厅呈现高雅的气质 。
- []120㎡现代风格大户型装修,电视隔断矮墙超赞!
- [唐嫣]唐嫣风格大变,剪短发配透纱裙显小又干练,画上浓妆美到不敢认
- 短发:?谭松韵“洗心革面”剪长发?短发帅气逼人,不同风格轻松驾驭
- @150平方简欧风格效果
- 【】简约装饰风格书房设计说明以及设计理念
- @4栋中式风格的二层别墅,白墙灰(蓝)瓦,施工简单生活自在
- :新中式风格设计的两栋别墅,复古碰撞时尚,擦出漂亮火花
- ##现代风格实景案例分享,温馨三口之家,满意度爆棚
- 北欧风格90㎡北欧风格装修,清新的色彩拼接让家更有高格调
- 『』153㎡现代美式风格装修,优雅与舒适的典范之家!
