『房产证』老公硬把餐厅设“半堵墙”,客厅加个假飘窗!聪明极了,晒晒

文章图片

文章图片

文章图片

文章图片

文章图片

因为考虑到家里的收纳功能 , 而且老公很想要一个书房 , 设计的时候老公硬把餐厅设“半堵墙” , 还把客厅加了个假飘窗!电视墙装满柜子 , 完工后觉得聪明极了 , 朋友亲戚来参观纷纷夸赞实用又大气 。 真的特别漂亮 , 如今我家也通风后也入住啦 , 忍不住也凑热闹晒晒 , 希望给各位一个参考!
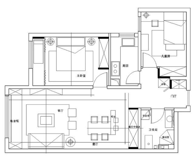
【『房产证』老公硬把餐厅设“半堵墙”,客厅加个假飘窗!聪明极了,晒晒】户型图
这是我家房子的户型图 , 标准两室一厅一厨一卫的户型 ,
客厅
从这里可以一眼看到入户门的位置 , 入户哪里是鞋柜的区域 , 鞋柜旁边摆放着冰箱 , 进来后就是我家餐厅、客厅 。 其中用心最多的就是餐厅的位置啦!
餐厅
本身我们是受到网友的启发 , 决定把餐厅打造成卡座的模式 , 后来老公灵机一动 。 硬是要在餐厅设“半堵墙” , 就是餐桌椅左边这面墙啦 。
没想到瞬间隔出来一个开放式的书房 , 可以说是书房也可以说是休闲书吧 , 除了看出还可以作为办公休闲的位置 。 半堵墙背后是一整面墙的收纳柜 , 可以储存我家的各种杂物 , 换季电器等等 , 实用极了 。 收纳很重要 , 尤其是家里有小孩更要重视储物空间 , 这个设计可以说绝了 。
透过餐桌椅看电视背景墙 , 满满当当的书柜设计 , 让整个客厅充斥着文化气息 。
电视墙的设计选择了灰色的柜体 , 柜子的设计也挺有格局感的 , 尤其中间的凹槽正好用来摆放电视机 , 总体看上去也不会突兀 。
整个客厅属于现代简约的气息 , 地面是实木地板 , 客厅家具主要来自网购 。 棕色布艺沙发耐脏耐看 , 圆形的极简风茶几
我最喜欢的就是柜子延伸到客厅窗边 , 这个假飘窗的设计 。 不得不说客厅加个假飘窗!真心聪明极了 , 不仅多了一个休闲小茶室 , 上面还能躺靠休息 。
假飘窗和柜子打开是满满当当的储物空间哦!晚上打开灯带也十分不错 。
主卧
黑色的皮质靠垫大床特别耐看 , 整个主卧温馨又富含质感 。
儿童房
我家熊孩子的房间 , 给他装了榻榻米床、书柜结合书桌的设计 , 榻榻米床是侧开形式的 , 侧面有抽屉打开可以储物 , 十分的方便 。 蓝白相间的墙面 , 也是充满童趣 , 十分适合男孩子 。
床对面是一组定制的衣柜 。
文章由齐家妙妙编辑 , 部分图片源于网络 , 侵权删!
- 办理房产证|办理房产证攻略有哪些?需要提前办理土地证吗?
- :152平美式,采用圆形餐厅,巧妙利用弧形鞋柜划分了玄关独立区域
- 『』装修别贪便宜!老公装修只花3万,这效果就是毁房!
- :40公分的榻榻米,被我抬到一米高,老公说我疯了,结果出奇好用
- []夫妻晒自家134平美式风,餐厅和厨房做一起,被邻居们纷纷夸好看
- 「」客厅与餐厅的灯具搭配,参考这9组方案,装出简约高级的美感!
- :老婆坚持在客餐厅中间砌半面墙,还以为脑子进水,完工后太实用了
- 「」媳妇非把餐厅包进厨房里,装完婆婆默默地清油烟
- 【】老公花12万装修的新房,头一次见鞋柜和阳台这么装的,漂亮!
- 上海房产证|上海房产证都是绿色吗
