|260平齐龙世纪花园美式风格

文章图片

文章图片

文章图片

文章图片

文章图片

文章图片

文章图片

基本信息:
风格:美式
面积:260㎡
【|260平齐龙世纪花园美式风格】户型:跃层/复式
小区:齐龙世纪花园
业主需求:业主喜欢美式风格 , 要求沉稳大方 , 既稳重又不失时尚 。
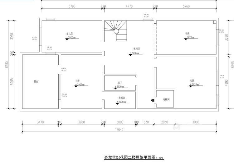
01 原始结构图
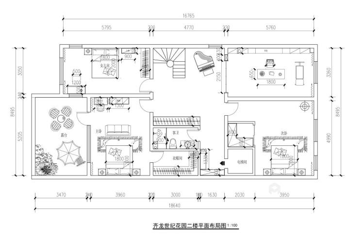
02 平面布置图
平面设计调整区域一是厨房缩小 , 做出餐厅的区域;二是主卧卫生间改造为衣帽间 , 将书房改为开放式书房 。03 客厅
客厅作为待客区域 , 一般要求简洁明快 , 同时装修较其它空间要更明快光鲜 。 背景墙运用木地板上墙和文化石设计 , 既有美式的做旧感 , 又有现代材质的新运用 , 背景墙显得与众不同 。04 餐厅
餐厅摆放圆桌 , 楼梯间底下做储物柜设计 , 既可以储物 , 又可以做餐边柜使用 。05 卧室
美式家居的卧室布置较为温馨 , 作为主人的私密空间 , 主要以功能性和实用舒适为考虑的重点 。 卧室不做吊顶设计 , 而是运用装饰线做出层次 。
美式风格代表了一种自在、随意不羁的生活方式 , 没有太多造作的修饰与约束 , 不经意中也能成就一种休闲式的浪漫 。 而这些元素也正好体现了一种对生活方式的需求 , 装修完成的效果显得房子有文化感和高贵感的同时还不缺乏自在感与情调 。
- 赵本山|赵本山批评儿子:“啥也不是”,身为95后,体重却已突破260斤
- |260㎡轻奢艺术大宅,优雅精致的新贵气质!
- |那些跳槽的人,后来怎么样了?从2600跳到一个月10k+
- 赵本山|赵本山警告儿子“啥也不是”,作为95后,严重发福体重超260斤
- 赵本山|赵本山批评儿子“啥也不是”,身为95后,提前发福体重超260斤
- |260平顶层复式楼入住一个月,全屋非常满意,露天阳光房太喜欢了
