|她家103㎡三居室,家居氛围太棒了,精致又温馨,充满生活气息

文章图片

文章图片

文章图片

文章图片

文章图片

文章图片

文章图片

文章图片

文章图片

“生活态度”对于一个家的居住者来讲 , 是向往精致 , 但无需刻意 。 尤其是本案的居住者 , 结合自身的需求 , 从空间到储物 , 会与你谈论家里的每个细节 , 从灯泡的瓦数谈到沙发旁的琴叶榕 , 为如何装修好房子做了不少功课 。 如果你苦于如何装修好房子 , 本案是个很好的装修范本 , 无论是功能布局还是软装搭配都真的很舒适 。
客厅
好的设计是严谨 , 是考虑空间利用最大化 , 房子要是设计得好 , 会把空间分配到最完美 , 堪称教科书般标准 。 而这户经过设计师改造后 , 在满足基础功能下 , 做了不少巧妙设计 。 从硬装和软装搭配上看 , 这个家不算豪华 , 并不是材料堆砌出来的 , 却让屋主一家人住着更舒适更顺心 , 下面我们一起看看吧 。
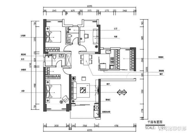
房屋基本情况和设计理念概述
原始结构图
三房103平米 , 属于刚需的紧凑户型 , 除了主卧之外 , 其他空间都不大 , 好在格局方正 , 入户附带个储物间 , 客厅有大阳台 , 并且老人房和儿童房都带飘窗 , 两个卫生间也是明卫 。
平面布置图
结合屋主的诉求和自身房子特点 , 做了如下改造:
①入户区域的储物间做平移门 , 减少门开合角度 , 里面设置两排超大储物柜;
②考虑到采光和通风问题 , 厨房做半开放式设计;
③餐厅旁边做嵌入式餐边柜 , 满足餐厅储物需求;
④主卧划分一块区域做步入式衣帽间 , 既扩大储物空间 , 也避免卫生间门对着床 。
室内实景
鞋帽间
入户处的储物间两边做成顶天立地大衣柜 , 白色柜门与原木色搭配 , 简洁却不单调 。 可以容纳下家里大量的杂物和换季衣物鞋子 。 门口右手边是结合换鞋凳功能抽屉柜 , 实用至上兼顾扩大视觉层次 , 底部抬高18公分 , 方便收纳一家人的鞋子 。
玄关走廊
玄关走廊的墙上安装一块黑板墙 , 计划给未来孩子的涂鸦绘画 , 平时也可以记录一些趣事 。 顶面采用平顶和无主灯设计 , 可以保证走廊灯光分布均匀 。
- |她家新房装修很成功,保洁做完,还没家具就很漂亮,太羡慕了!
- |北欧极简的三居室这样装修,目光所及皆是家的温柔
- 老年小妙招|同样是小户型,为啥她家装完大很多?看完她家收纳设计,我惭愧了!
- |她家辛苦一年硬装终于完工,电视墙非常实用,打扫干净给大家晒晒
- 美颜|158㎡新中式三居室,如此诗情画意,尽显东方之美
- 设计师|装修并非越豪华越好,过日子温馨舒适清爽才是关键,像她家就挺好
- |三居室新房,不做电视墙,坚持不要灯带,简单省钱又耐看,很满意
- |小户型装修如果预算不多,可以参考一下她家,省钱好看品质也不差
- |洋溢着青春活力的北欧风三居室,给人的感觉干净、舒适,真喜欢!
- |别再迷恋黑白灰了,像她家一样,给家里添点色,居住氛围更轻松
