|晒晒我家89㎡新房装修,90后老婆太厉害了,全屋塞了不下40个柜子

文章图片

文章图片

文章图片

文章图片

文章图片

文章图片
我家建筑面积是89平米 , 纯正的刚需房 , 公摊面积大 , 得房率超级低 。 别人买房只用考虑怎么住就行 , 我家的话还要考虑东西怎么放 , 怎么才能有更多的收纳空间 。 最终需求是满足了 , 全包花了13万 , 当然这要得益于90后老婆的努力 , 89平米的房子 , 硬是塞下了不下40个柜子 , 想想都感觉可怕 。
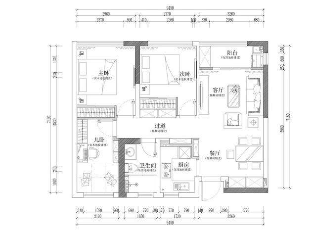
平面布局图 , 入户门在下边 , 南北通透户型 , 两个卧室朝南 , 户型看着还是可以的 。
【|晒晒我家89㎡新房装修,90后老婆太厉害了,全屋塞了不下40个柜子】下面一起来欣赏下我家的毕业照
入户门的位置 , 右边是开放式的厨房 , 门口和右边做了两排柜子 。
餐厅近景 , 实木的餐桌椅 , 背景墙用石膏线条和壁画做了简单装饰 。
厨房 , 依然是白色的橱柜 , 搭配米黄色石英石台面 。 上下都满满的是柜子 。
从餐厅看客厅方向 , 依然和餐厅一样的电视柜和茶几 , 搭配灰色沙发 。 电视背景墙用的墙布 , 边缘石膏线条装饰 。 沙发背景墙也是石膏线条做装饰 , 简单而又不失美观
客厅看餐厅方向 , 广角镜头下的 , 你懂的 。
通往卧室方向的过道 , 两边都是柜子 , 和周边完美的融合到了一起
主卧 , 还是美式风格
主卧 , 面积不大 , 但是衣柜不能少
奇葩户型 , 和主卧面积一样的次卧 , 尴尬
书房 , 既然是书房 , 那柜子更不能少 , 入门处一排 , 拐进来又一排
卫生间 , 干湿分离 , 除了洗漱柜做收纳外 , 淋浴间也打了上下一排洞 , 用的时候你才发现它的好处
文章由齐家妙妙编辑 , 部分图片源于网络 , 侵权删!
- |头一次见衣柜还能这样做,有钱人都流行装这种,后悔我家装早了
- 大门|夫妻将新房装修成样板房,却被亲戚吐槽不想入内,直呼太“冷”了
- |晒晒我108㎡简约美式风新家,三室两厅优雅大气,人见人爱!
- |通风一个半月终于乔迁新房,效果还不错,女儿特别开心,分享一下
- |卫生间装修最容易被忽略的19个细节,我家连中5条,现想砸了重装
- |装修这几处万万不要做柜子,一听老木工说的话,才知我家装早了
- 豆角|每年夏天我家必做酸豆角,一次腌10斤,干净卫生,放半年也不坏
- |我家卧室不做衣柜,这样隔出“衣帽间”!美观实用,绝了
- 饺子|三伏天,用它包饺子最香,9毛钱一斤,我家一周做3回,雷打不动
- |107平新房装修划分了10个电线回路,多花些钱,用着方便心里踏实
