|她买下42㎡单身公寓,一家三口住,客厅不放沙发,阳台当榻榻米

文章图片

文章图片

文章图片

文章图片

文章图片

文章图片

文章图片

文章图片

文章图片

文章图片
坐标厦门 , 这是一套42平米的单身公寓改造成三口之家装修案例 , 面积虽然很小 , 但是在厦门寸土寸金的地方 , 拥有一套属于自己的房子已经很难得了 。 小户型在装修上每一平米都要锱铢必较不能浪费 , 原始格局已经无法满足三口之家生活 , 屋主提出要有小两房、客厅、餐厅、厨房的功能 , 外加一个男主学习办公区和一个孩子娱乐区 。 小编觉得已经是极限了 , 但装完的效果不仅满足屋主要求 , 连收纳空间都很大 , 简直太棒了!堪称小户型装修模板 , 我们一起来看看吧 。
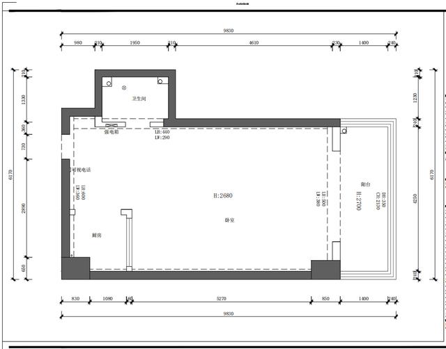
原始户型图
布局图
这是这套房子的平面设计图 , 整体结构并没有太大改变 , 只是做了一些改动:
1.卫生间洗手盆拿到外面 , 不仅和洗衣区形成互动 , 同时也让卫生间有了单独淋浴房 , 设计成干湿分离 。
2.拆掉厨房墙体 , 改成主卧 , 在外面做成开放式厨餐厅设计 , 满足屋主小两房要求 。
【|她买下42㎡单身公寓,一家三口住,客厅不放沙发,阳台当榻榻米】3.把阳台和客厅连在一起 , 让公共空间更加宽敞明亮 , 也是孩子的小卧室 。
玄关
入户即是玄关 , 设计利用洗衣机和烘干机叠放方式 , 解决小户型的晾晒问题 , 旁边设计成洗手盆 , 洗漱洗衣一体 , 实用性大大提升同时 , 同时也让卫生间有了单独淋浴房 , 方便又实用 。
玄关
长度90公分的洗手盆 , 镜箱+台盆一体洗手柜组合 , 大大提升收纳空间 , 地面用北欧小花砖点缀 , 丰富了视觉层次 , 也把玄关和客厅区域划分开 。
玄关
玄关另一边是一个鞋柜 , 上下储物柜 , 中间留空放置包包、钥匙等小物件 , 底部悬空放鞋子 。 入户门两边固定一根晾衣杆 , 功能性也很强 。
客餐厅
客餐厅
从客厅看向玄关 , 开放式厨餐厅设计 , 整面墙的收纳空间 , 用白色家具和原木色搭配 , 最大化让人感受到舒适自然 , 宽敞明亮 。
- |表姐工作3年买的37平单身公寓,这装修是不是很高大上?
- |32㎡个性单身公寓,拒绝千篇一律
- 老年小妙招|40㎡现代风单身公寓,拥有超强收纳设计,打造都市女神钟爱的家
- 感应灯|日子过久了才发现,多亏当初冲动,买下这些好物,太实用了!
- 翡翠|买下的一块18公斤形状怪异的翡翠原石,切开后是垮还是涨?
- |花40万全款,买下的26㎡单身公寓,家里亲戚都骂我脑子进水
- 富人区|单身独居男士的家,上海“富人区”36㎡小复式,客厅把我惊艳到了
- |38平方小复式单身公寓,有点轻奢的北欧风
- |40平米的单身公寓装修完工,入门就被迷住了,半圆阳台采光超棒
- |40㎡loft单身公寓,小户型都能装成这样,还买什么大房子?
