|不慌不忙断舍离,35㎡装出两房一厅,全屋一尘不染毫无杂物

文章图片

文章图片

文章图片

文章图片

文章图片

文章图片

文章图片

文章图片

文章图片

文章图片

文章图片

文章图片
小户型装修难点在于空间规划 , 既要满足日常生活功能 , 又要有足够的储物空间 , 才能让居家生活更舒适整洁 。 装修前要明确提出要求 , 然后逐一击破 , 才能装出满意的效果 。 比如今天分享的这套案例 , 可以说是小户型装修典范 , 35㎡的复式房 , 不慌不忙的断舍离设计 , 减少造型和装饰 , 以简洁的设计手法贯穿全屋 , 完工效果简练纯真 , 不仅有三分离卫生间 , 大面积隐形柜设计 , 满足收纳又不影响美观 , 全屋一尘不染毫无杂物 , 羡慕 。 (案例设计:吴恒)
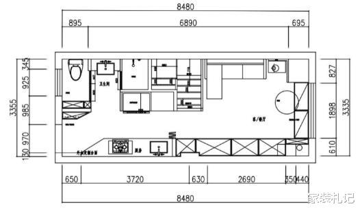
原户型结构图 , “一字户型”面积不大 , 但胜在规整 。 户型总面积35㎡ , 层高4.6m可发挥空间还是很大的 。 利用挑高做隔层 , 实现动静分离效果 。
一层装修平面图 , 满足一日三餐、会客、撸猫、追剧等功能 , 同时还拥有大面积的收纳柜 。
二层装修平面图 , 布置卧室和多功能房 , 不受外界干扰 , 让隐私空间更加私密化 。 同样大面积收纳柜设计 , 提高二层收纳能力保持空间整洁 。
入户进门便是厨房空间 , 一字形布局空间不会太过拥挤 。 橱柜和吊柜结合 , 让厨房收纳绰绰有余 。 吊柜底部增加辅助照明 , 洗菜的时候不背光更舒适 , 五金挂钩的安装 , 不仅保持了台面整洁 , 使用起来也更加顺手 。 橱柜和吊柜采用双色调 , 平添几分活泼感层次感 , 缓解层高带来的压抑 。
玄关区设计很巧妙 , 鞋柜斜切设计 , 避免了空间拥挤 。 局部铺贴瓷砖 , 耐脏好清洁同时减少灰尘带入室内 。 排布有序的顶灯设计 , 让照明效果更加舒适均匀 。
- |66㎡ 小宅,却装出了99㎡ 的感觉
- 背景墙|这款65㎡精致通透小户型,装出了大宅的气势,简约又不失奢华!
- 设计师|这是我见过最简洁干净的设计,120㎡,断舍离,给生活做个减法!
- |晒晒134平新房,装修全是媳妇说了算,没想到装出的效果吓到我了
- 设计师|把55㎡小两居,愣装出了80㎡的既视感!只因设计师这两个好设计!
- |小夫妻的第一套房子,花17万装出来的温馨北欧风,进门就不想出来
- |小户型空间不够用?学她家断舍离设计,住了一年依然整洁如新
- |日本厨房难得一见脏乱差,主妇3招彻底断舍离,清清爽爽这才像样
- |定期扔扔扔!坚持断舍离!她把家收拾成这样,连强迫症都被治愈了
- |127㎡现代混搭,美式、轻奢、简约大杂烩,装出你没见过的风格
