设计师|2020年最时尚的二层农村别墅,挑空客厅+落地窗,造价仅需40万

文章图片

文章图片

文章图片

文章图片

农村盖房子就怕各种限制 , 限高度 , 限面积 , 盖出来的效果不尽人意又如何处理 , 这些问题在今天要给大家展示的户型里全都得到了解决 。 今天的这个户型 , 特别实用又适用咱们的农村生活 , 造价不贵仅需40万 , 喜欢的朋友还不抓紧收藏吗?
· 编号:YG689 ·
开间:14米
进深:11.5米
占地面积:141平方米
建筑面积:264平方米
层数:2层
结构形式:框架结构
屋顶形式:坡屋顶
主体造价:42万左右
建筑整体为简欧风格 , 立面选用文化石和真石漆进行装饰 , 建材转变勾勒出空间层次 , 使得建筑视觉上更加舒适 。 同时 , 业主在易盖房建材商城选择的两种建材颜色相近 , 让建筑整体性得到保证 。
一层西侧设计两间卧室 , 公卫位于中间 , 方便使用 。 由于空间变化、功能分区使得卧室居住环境极佳 。 东侧为公共空间 , 客厅面积适中 , 临近过厅和楼梯间 。 厨房与餐厅紧邻 , 为方便使用 , 厨房位置开有后门 。
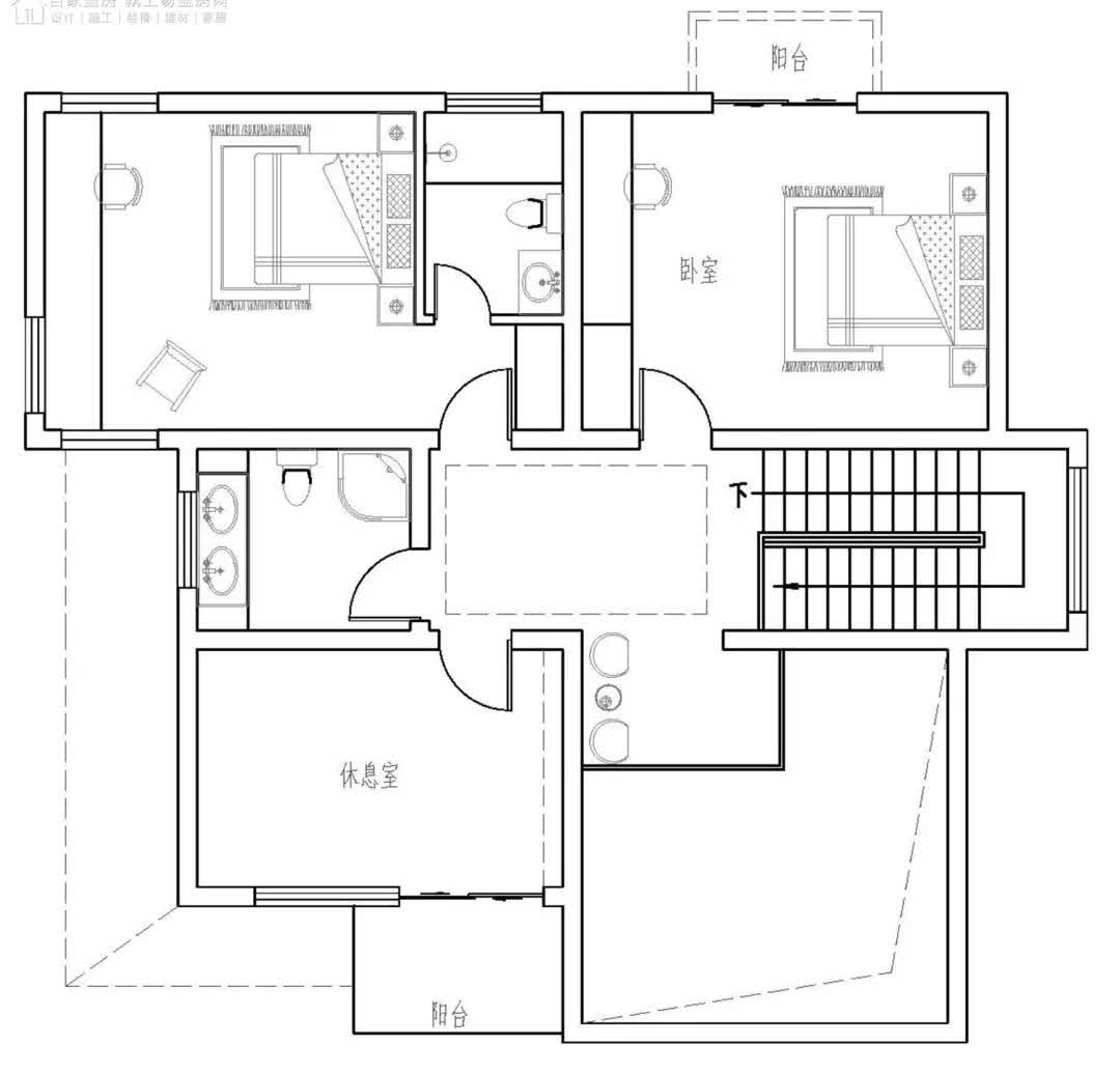
二层主要为起居空间 , 北侧两间卧室并列 , 南侧预留一间休息室 , 后续业主可根据需求进行房间功能调整 。 由于客厅为挑空形式 , 因此二层和一层交流增多 。
屋顶为欧式经典的四坡屋顶 , 在空间凹凸变化部分利用局部凸起进行强调 , 从而增加立面层次感 , 使得建筑整体视觉上十分丰富 。
二层阳台部分以玻璃围栏增加通透性 , 挑空客厅的窗户选用拱形窗 , 室内采用白色窗帘 , 配合窗户部分的黑色分隔 , 展现了极美的视觉效果 。
庭院预留停车空间 , 靠近卧室的西南角设计有休息平台 , 其余空间以草坪铺地 , 打造出错落有致的空间感 。 侧面过道点缀两棵花树 , 自成一景 。
【设计师|2020年最时尚的二层农村别墅,挑空客厅+落地窗,造价仅需40万】这栋别墅不管建在哪 , 都是回头率百分百的建筑 。 2020年要建房的赶紧收藏!
- 设计师|瑜伽老师的极简之家,简约不简单,精神和物质的双重满足
- 设计师|一进她的113㎡新家,就被玄关迷住,全屋色彩斑斓,高级感藏不住
- |父母参与装修的新房,时尚漂亮又大气,电视墙非常抢眼,很喜欢!
- 乾隆|古典文化和时尚相结合,翡翠雕刻这样玩很皮很有趣
- |续钓闸口,再现大板鲫
- 设计师|庭院铺装设计常犯的八大错误,你躺枪了没?(附解决方案)
- 穿衣搭配|运动也可以穿出时尚范儿,秋天去健身房,我想学王丽坤穿衣服
- 设计师|如果你有个院子,你会找设计师设计吗?
- 5G|摩托罗拉将推出首款5G折叠屏手机
- 康熙通宝|两极分化和降级消费,成为2020年翡翠与和田玉的新趋势
