设计师|她很有远见,客厅舍弃电视,卧室改做茶室,两人居住太舒适了

文章图片

文章图片

文章图片

文章图片

文章图片

文章图片

文章图片

文章图片

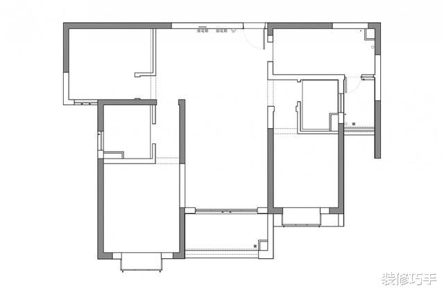
这是一套来自杭州市王女士家的新房装修案例 , 房子面积有130㎡ , 3室2厅2卫1厨房1阳台 , 位于14楼层 , 户型空间格局和采光都很不错 。 当初购入时是一套毛坯房 , 经过与设计公司的设计师一系列的沟通之后 , 才有了现在装修效果 。 对于房子的装修王女士也是有自己的想法和构思的 , 鉴于五花八门的装修风格王女士想简装 , 装修得越简单越好 , 但是不能太单调 。 下图是房子的原始结构图 , 从框架中可以看出 , 各个空间分布还算合理 , 空间尺度也比较舒服 , 没有太大的格局调整 。
房子的空间格局是这样的 , 从门厅进来后是餐厅和客厅、阳台 , 餐厅空间比较大 , 可以在旁边做一些收纳柜 , 左侧分别是次卧和主卧 , 主卧中是有独立卫生间的 , 是一间不错的套房 , 右侧也有一间次卧 , 还有一个卫生间和厨房 。 在此基础上王女士和设计师经过多次沟通后确定了设计方案 , 在功能上有所调整 , 因为房子长期都是王女士夫妇居住 , 恰好王女士和丈夫有一个共同爱好就是喝茶 , 对茶道非常喜爱 , 所以就把其中一间卧室改成茶室 , 这样不仅满足屋主的喜好还提升了生活品质 。
上图就是平面设计方案 , 空间中的功能布局一目了然 。 简装其实是最难装的 , 因为没有过多的修饰 , 如果细节处理不好很容易出现一些影响效果的问题 , 所以对于简装更应该精益求精 。 那接下来我们就一起看看实际的装修效果吧!
【设计师|她很有远见,客厅舍弃电视,卧室改做茶室,两人居住太舒适了】
房子通铺的木地板 , 墙面和顶面都是乳胶漆刷白 , 并没有做立面造型装饰 , 在客厅一眼望去效果也是非常舒服的 。 虽然是简装 , 但给人的效果是截然不同的 , 这个效果更有质感和品位 。
客厅的电视墙就很特别 , 这里做的是展示收纳于一体的悬空壁柜 , 长直的线条和规整的空间分割给客厅增添了时尚和现代感 。 柜子的下层是一排抽屉 , 设计非常大方简洁 , 很唯美 , 中间层是摆放物品的格子和电视机的空间 , 最上层同样是收纳空间 。 柜子悬空的设计既让空间显得很灵活 , 而且又很卫生 , 易于打扫 。 柜子的颜值也不错 , 还用了灯线装饰 , 很有灵气 。 但这里舍弃了电视机 , 而是用了投影仪 , 这样对于娱乐来说更舒适 。
- 设计师|瑜伽老师的极简之家,简约不简单,精神和物质的双重满足
- 设计师|一进她的113㎡新家,就被玄关迷住,全屋色彩斑斓,高级感藏不住
- 设计师|庭院铺装设计常犯的八大错误,你躺枪了没?(附解决方案)
- 设计师|如果你有个院子,你会找设计师设计吗?
- 设计师|看了他的110㎡新家,才知道什么叫现代简约风,入户赏心悦目
- 宜家家居|小户型隔墙怎么设计?采光不好还有救吗?设计师靠室内开窗问题
- 设计师|401㎡新中式设计,化繁为“简”,纵享悠然
- 设计师|58m2小户型改造出一个后花园外加一个双人办公区你敢相信吗!内附超详细改造干货
- 设计师|打破常规的布局,79㎡ 每个细节都是设计!
- 设计师|27张另类设计作品,红着脸也要看完的
