|6套高颜值别墅效果图带户型图,美观实用,百看不厌!

文章图片

文章图片

文章图片

文章图片

文章图片

文章图片

文章图片

文章图片

文章图片

现如今农村自建房越来越多 , 但是有那么一些因其简约漂亮的外观和实用的布局备受十分多农村朋友的青睐 。 你知道都有哪些别墅外观比较好看的吗?什么样的别墅比较好看呢?网上的图纸找了又找 , 实在是找不到自己喜欢的 。 下面给大家分享了6套小编认为既漂亮又实用的别墅设计图 , 一起来看看吧~第一套:14×13米新中式现代一层别墅房屋设计图 , 外观现代、时尚
别墅效果图
占地面积:14.0m*13.5m;
建筑面积:180平左右;
建筑层高:一层;
建筑高度:6.50米(含屋顶);
设计功能:
客厅、餐厅、厨房、主卧(带卫生间)、卧室x2、书房、衣帽间、卫生间;
别墅户型图
第二套:13×13米带大套间新农村二层别墅自建房设计图 , 外观简单时尚
别墅效果图
占地面积:13.8m*13.8m;
建筑面积:185平方米左右;
【|6套高颜值别墅效果图带户型图,美观实用,百看不厌!】建筑层高:二层;
建筑高度:9.19米(含屋顶);
设计功能:
一层户型:客厅、厨房、餐厅、卧室(带卫生间)、卧室;
二层户型:客厅、卧室(带衣帽间书房卫生间)、卧室x2、卫生间、观景阳台;
别墅户型图
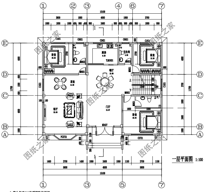
第三套:15×11米多卧室复式二层别墅房屋设计图 , 外观精致、新颖
别墅效果图
占地面积:15.10m*11.70m;
建筑面积:175平方米左右;
建筑层高:二层;
建筑高度:9.90米(含屋顶);
设计功能:
一层设计:门厅、客厅、餐厅、厨房、卫生间、卧室x3
二层设计:客厅上空、休息区、卧室x3、卫生间、露台x2;
- 设计师|这才是豪宅,255㎡别墅设计,现代风+中式元素,入户后惹人羡慕
- |这样的三层豪华大气欧式别墅,村里盖一栋,父母都为你自豪
- |气质飘窗大露台,多间卧室设计的好别墅,回去盖绝对不亏。
- |客厅挑空,带弧形楼梯和堂屋的别墅,完全满足现代生活需求
- |11×11米,复式三层平屋顶别墅,好看又省钱,适合农村建
- 穿衣搭配|适合秋季职场女性的穿搭有哪些?这16套简约舒适穿搭,优雅干练
- 单身公寓|36㎡一字型旧房逆袭,单身公寓装出了小别墅的感觉,还有一个小花园!
- 眼霜|戚薇眼角几乎没有皱纹!看到她涂眼霜的方式后,网友:高颜值是有原因的
- |宽15米左右,带车库设计的两层别墅,欧式和中式都够靓
- 结婚|17×10米农村别墅,新中式风格设计,好看到想舔屏
