|102平三室两厅装修样板间,大气精致现代风格,忍不住晒晒!

文章图片

文章图片

文章图片

禧顺花园102平米三室两厅一厨两卫的户型!整套房子的设计简洁大气 , 时尚精致!
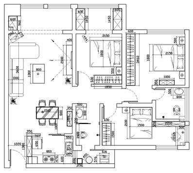
平面布局图:
效果图鉴赏:
1、玄关:
入户右手边是厨房 , 空间比较小 , 没有面积放储物柜 , 设计师做了嵌入式的定制储物柜 , 这样一来不仅可以解决玄关储物问题 , 还不占用正常通行空间 。
2、客厅:
整个客厅温馨大气 , 没有复杂的装饰设计 , 素色沙发温馨舒适 , 地面800*800木纹石大地砖 , 单独设计的电视墙时尚又新颖 , 更显空间的精致个性 。
3、餐厅:
餐厅背景墙的设计 , 令人感觉轻松又个性!使用白色大理石台面的餐桌 , 与餐桌相搭配的烤漆白酒柜 , 方便收纳美观实用 。
4、卧室:
【|102平三室两厅装修样板间,大气精致现代风格,忍不住晒晒!】卧室的搭配 , 更是将简洁、轻松进行到底 , 尽量减轻各种造型、装饰、软装布置带来的厚重感 , 白色的主色调 , 原木色家具 , 用温柔的灰色做软装 , 打造放松、随意的休息空间 。
- 儿童房|130㎡三室简约,三代人原木素雅家
- |这套200平米4房两厅,每一处设计都是亮点,太美了!
- |看了他家102㎡,我承认输了!三房一厅两卫,回家就像度假
- 香港|朋友在香港的40㎡“豪宅”,规划出三室两厅!收纳堪称一绝
- |三室两厅装修样板间!154平米现代风格装修效果图,漂亮极了
- |太高兴了,三房两厅的新房终于完工,打扫干净很漂亮,非常满意!
- |113平两室两厅装修效果图,现代风格复式婚房,超大超豪华!
- |为满足三室功能,她连改5套方案,全屋设计处处显细节!
- |西安谷空间设计:一厅三室,灰色+木色,高级!
- |128㎡三房两厅衣柜全到顶,卧室装个超超超大电视柜,绝了!
