按关键词阅读:



△室内装饰
平面图
▽

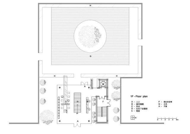
△一层平面图

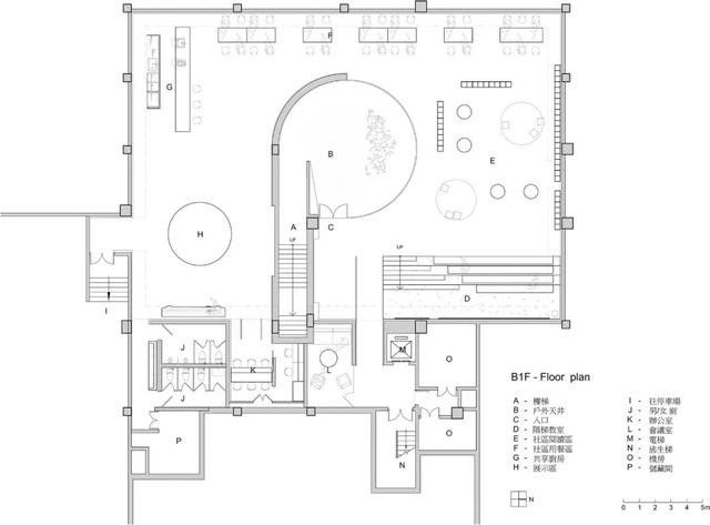
△地下一层平面图
稿源:(房天下资讯)
【】网址:http://www.shadafang.com/c/hn491611.html
标题:万有引力:光、空气、水,温润质朴的和谐之音(11)



△室内装饰
平面图
▽

△一层平面图

△地下一层平面图
稿源:(房天下资讯)
【】网址:http://www.shadafang.com/c/hn491611.html
标题:万有引力:光、空气、水,温润质朴的和谐之音(11)
上一篇:当地人都不愿意去的死海,为什么总是有游客前去?专家:这道理只
下一篇:云南最小的市州,比玉溪小得多,等于半个昆明,却比丽江还要有钱
小编提示您本文标题是:杭州跻身春节十大热门城市,还成了吃货最爱!但这份爱貌似有...
小编提示您本文标题是:2018全球最佳旅游胜地,塞舌尔。来源是女人不应该委屈自己。...
小编提示您本文标题是:财务造假债台高筑*ST两家公司双双退市 谁来收拾散户的一地鸡...
小编提示您本文标题是:网友盘点国内十大有颜值,有内涵的小吃街,快来签到你去过哪...
小编提示您本文标题是:南澳大利亚玩不停的冒险乐园。来源是。 两年前,她第一次来澳...
小编提示您本文标题是:来东京都厅,一起俯瞰东京。来源是斑鸠旅行。 早晨起来,东京...
小编提示您本文标题是:“到此一游”!日本京都岚山竹林遭游客刻字破坏。来源是。 游...
小编提示您本文标题是:金秋最值得去的11个古镇,据说五千年的文明都在这里了。来源...
小编提示您本文标题是:西安是一座来了还想来的城市,很适合来旅游的朋友。来源是。...
小编提示您本文标题是:走私边贸横行,越南海产进口额从2500万增至50亿,大部分流入...