按关键词阅读:
家装室内设计 ,每日搜集分享国内外最前沿的家装设计、施工、建材等内容,成为您家装的好帮手!
本案是一套面积为135平米的潮流混搭风两居室,屋主是一对七零后夫妻,屋里面所有的功能、布局,都融入了两人10多年生活的习惯,同时加入了中央空调、中央热水、地暖、新风、净水、热水循环等提升居住舒适性设备,以及热泵干衣机、洗碗机、垃圾处理器、扫地机器人等提升生活便利性电器,弥补此前刚需房的遗憾与缺失。

文章图片
图赏

文章图片
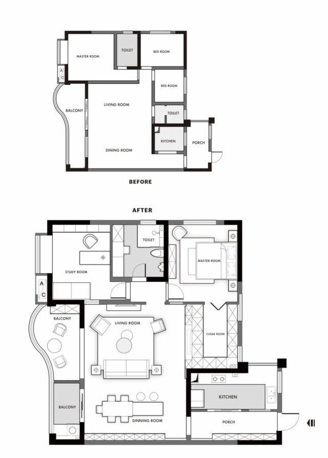
▲平面户型图
户型改造:
1、将原玄关部分空间纳入厨房,扩大厨房使用面积,将过道与玄关结合,玄关使用面积没有压缩;
2、原本拉通的阳台被一分为二,餐厅左侧为生活阳台,客厅左侧则被规划为休闲阳台;
3、考虑长期只有两人居住,借用部分书房面积拓宽北侧卫生间,另一间卫生间和次卧打通,改造成超大衣帽间。
【 兼具|135㎡潮流混搭风两居,居住舒适性和品质感兼具的家】/玄关/

文章图片
玄关鞋柜整体做了上下分色处理,上部分为米白色,与门套窗框色彩一致,下部分为墨蓝色与墙面颜色统一,色彩和谐统一,而且也不失趣味性。
/客厅/

文章图片
顺着玄关进入公共空间,餐厅和客厅连为一体,拉伸视线边界,更显宽敞通透。

文章图片
客厅整体以灰色做主色调,以蓝色做点缀,在沉静中添入了几分灵动和清爽。 电视墙用石材造型,在石材左侧开出小窗,与背后的书房相连通,增进了两个空间的互动。

文章图片
水洗亚麻质感的沙发,为空间注入了柔软,让人一回家就想摊在上面葛优躺。

文章图片
壁龛两侧设计了嵌入式储物柜,柜门造型好似两扇双推门,不禁让人误以为门后还有两个房间,在意识上拓展了空间面积。

文章图片

文章图片
客厅与阳台之间用百叶折叠门隔开,让阳台形成一个独立的休闲角落,为绿植划分出一块单独的小天地。
/餐厅/

文章图片
餐厅集西厨、岛台、餐桌,多功能为一体。西厨两侧为顶天立低的储物柜,用以收纳各种杂乱的日常用品,为空间保持长期整洁奠定了基础。

文章图片
西厨墙面用了小方砖斜贴,为用餐空间增添了几分情调。

文章图片
拍摄期间屋主一边煮咖啡,一边给我们介绍咖啡豆的来源,字字句句间都是对生活的热爱。

文章图片

文章图片
岛台台面安装了水槽,再也不用跑去厨房洗水果了。足够宽敞的操作台,日常做做甜品果汁,都能在上面轻松搞定。
/厨房/

文章图片分页标题#e#
厨房深灰蓝色的定制橱柜,地面、墙面瓷砖都选择了石纹,整个空间非常有品质感,沉稳高雅。
/主卧/

文章图片
卧室作为私密空间相比公共空间,色彩更加丰富有趣,在大面积浅灰色中融入了红砖和灰绿色,对比色碰撞出更具张力的视觉效果。

文章图片
窗帘与墙面颜色呼应,展现软硬差异的材质对同种色彩的不同演绎。

文章图片
设计师特地打造了格子型吊顶,让横梁隐藏其中,不再有突兀感。右侧的百叶帘,左侧的百叶门,让独立的空间多了一些互动性。
/衣帽间/

文章图片
超大的衣帽间是男主人对女主人的宠爱,衣柜设计有藏有露,当季常穿的衣物放置在透明柜门里,一目了然,方便收取。
/书房/

文章图片

文章图片
书房用了甜甜的橘粉色,是一个美好的收藏知识和兴趣的空间。书柜与墙面做了统一的分色处理,无缝连接,增强了空间的整体性。

文章图片
书桌的对面定制了小床,平时可以用作沙发,家里来了客人也可以临时住宿。
欢迎业主、设计师、装修公司投稿

来源:(二狗聊社会)
【】网址:/a/2020/0821/kd444671.html
标题: 兼具|135㎡潮流混搭风两居,居住舒适性和品质感兼具的家