|谁说顶层不能买?看完朋友家70㎡的小户型,露台就30平,真香!

文章图片

文章图片

文章图片

文章图片

文章图片

文章图片

文章图片
谁说顶层不能买?看完朋友家70㎡的小户型 , 露台就30平 , 真香!都说“穷买顶楼 , 傻买一楼” , 而我有个朋友就没听劝阻 , 买了一套70㎡顶楼的房子 , 而且开发商还赠送一个近30平米的露台 , 装修后邀我去做客 , 进门后我被他家宽敞的房子惊呆了!房子只有小夫妻俩自己住 , 并把露台封闭起来 , 让室内面积瞬间增大近30平米 , 室内日式风设计 , 简约清爽明亮 , 非常温馨舒适 , 虽然顶层有点高 , 但朋友毕竟年轻 , 选择顶层过渡真心很不错!
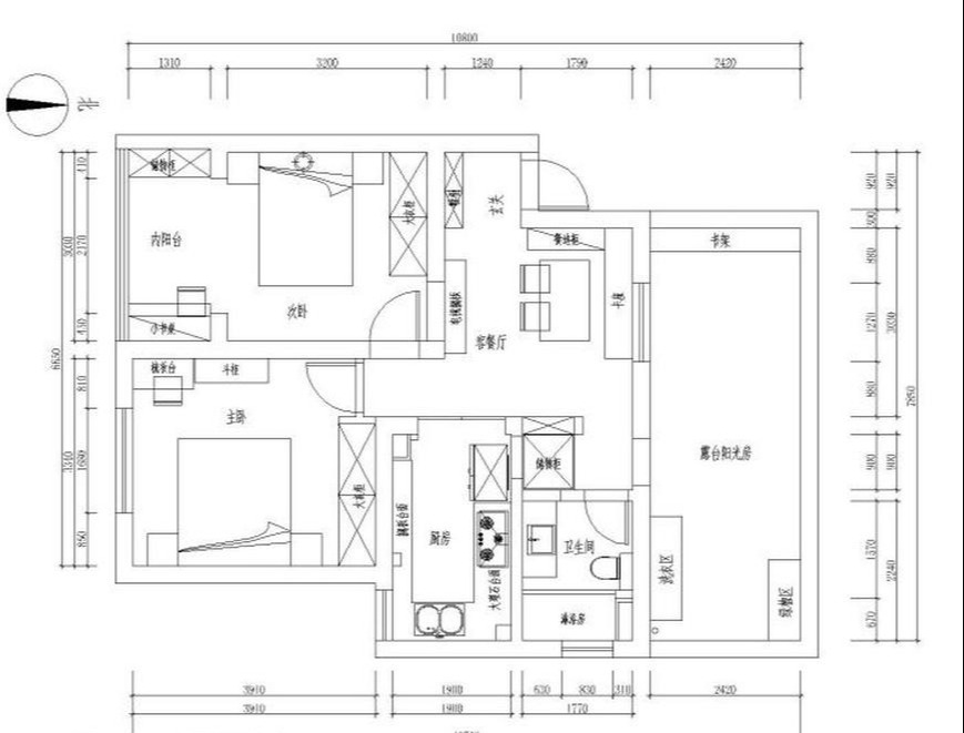
户型图
从户型图可以看出 , 这套房子两居卧室全朝南向 , 根据也很规整 , 宽大的露台十分明显 , 让家里增加面积 , 居住也更舒适 。
玄关
进门玄关的位置 , 朋友家在对面墙上定制了一个通顶式悬空鞋柜 , 旁边墙面设置了挂衣钩 , 鞋柜中间镂空处的置物台放置了一些相框和小绿植等 , 也方便家人进门时随手放钥匙等小物品 。 空间虽然不大 , 但在这里换鞋放鞋和挂取衣物、包包等方便实用 , 小小的玄关十分整洁清爽 。
客厅
由于是小户型 , 客厅面积不足10平米 , 因此 , 朋友家将客餐厅合为一体 , 整体空间白色为主色调 , 搭配原木色的家居配置 , 显得自然清新 , 敞亮而不压抑 。
餐厅
卡座式餐厅设置在转角处 , L型餐边柜+卡座的组合形式 , 不但增加了储物功能 , 也让餐厅和餐桌变得整洁利落 , 让各种餐具、水具和生活用品收纳自如 。 原木色的餐桌搭配两把白色的餐椅 , 简约而轻盈 , 更显空间通透明亮 。
在餐桌侧面的墙上 , 还改造出一个嵌入式的开放书柜 , 里面摆放的书籍和精致小摆件、绿植等 , 起到装饰和美化的作用 , 让室内空间充满灵动 。
厨房
书架旁边的玻璃移门内便是厨房的位置 , 原本L型厨房 , 镜柜靠窗一侧延伸的搁板 , 优化成U型厨房 , 超大原木色橱柜的储物空间以及墙面挂杆等组合设计 , 让厨房各类物品和用具的收纳轻松自如 。 宽敞的操作空间也让下厨烹饪游刃有余 。
主卧
主卧依然延续整体的白色为主色调 , 搭配灰色的百搭窗帘 , 非常清新舒适 , 床尾白色电视柜旁还摆放一个梳妆台 , 是朋友妻子的最爱 , 每天都能自信的美美的走出家门 。
床的侧面是一个嵌入式的三门衣柜 , 满足家人各季节衣物和被褥等收纳的需求 。
次卧
次卧连接一个室内阳台 , 整体房间布置的整洁清爽温馨 , 采光充足 。 阳台两侧分别做了储物柜和小型工作区 , 既提高收纳能力 , 又满足小夫妻在家工作的需求 。
- 土干|打花苞的长寿花盆土干可以浇透水吗?
- 撑爆|养红掌有“3不能”,做好根系撑爆盆,叶片绿油油,满盆全是花!
- 特别|这四处不能放食用油,特别是第二处还好知道得及时,学到就赚了
- 养花|你家绿萝黄叶吗,原来此3个位置不能放
- 不烂|4种花不能多浇水,少浇水反而不烂根,长得旺,是懒人盆栽的福音
- 季节|秋冬季节多肉该红的还不红,该包的也不包,不能只怪光照少温差小
- 根系强|长寿花不能一盆栽多棵!因为难养好,想要一盆多色只有一个方法!
- 虞美人|养花不能乱养,这6种花不能放在室内,花香浓郁植株有毒
- 亏得|买多肉,“这4样”再便宜也不能要,不然亏得比赚得多!
- 花卉|茶叶水到底能不能用来浇花对花卉的生长是好是坏
