|占地一百三十平的洋气欧式三层别墅,8卧4卫,永远不会过时!

文章图片

文章图片

“建筑传承文化 , 宇鸿筑造世家 。 ”
大家好 , 欢迎来到宇鸿建筑 。
经典永远不会过时房子也是如此 。 在如今兴起的农村自建房潮流中 , 欧式别墅就是其中的典范传统的欧式风格的房子因繁复精美的细节工艺而出名 。
今天给大家推荐一款欧式风格的三层别墅 。
【|占地一百三十平的洋气欧式三层别墅,8卧4卫,永远不会过时!】
别墅的外观装饰整体采用了暖色调 , 一层采用了深色的仿石漆喷绘工艺 , 二三层采用了米白色同等工艺 , 坡顶是斜坡式排水坡顶 。 门前的立柱和二三层的外墙颜色相呼应 , 整体的层次感很强 。
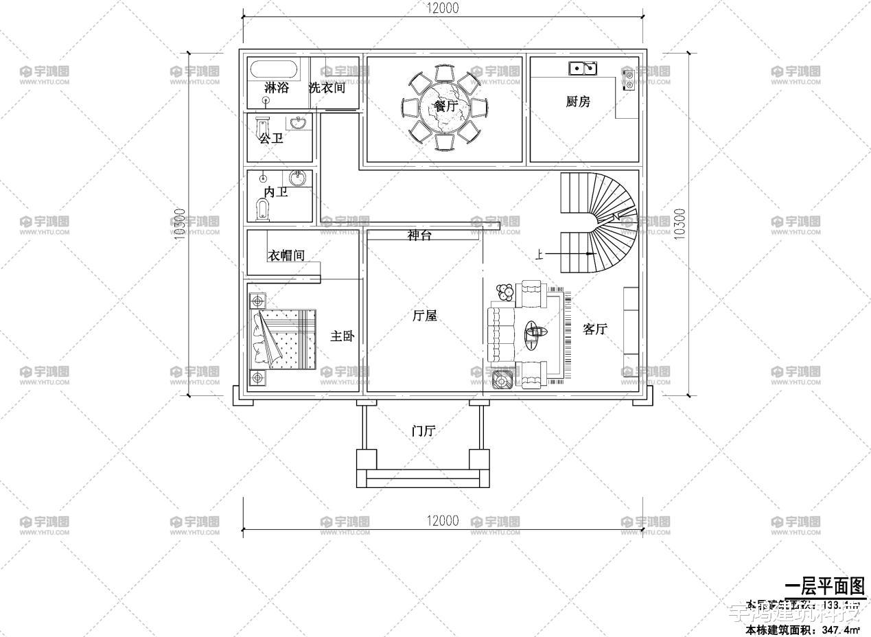
别墅的开间为12米 , 进深10.3米 , 占地面积133平米 , 是一套面积不大的小三层别墅 。
一起看下室内设计布局图纸:
一层从门厅进入是厅屋 , 里面是神台 , 复式客厅设计在右边 , 旁边是旋转式楼梯 , 里面的厨房和餐厅 。 左边是一间带独立套卫和衣帽间的主卧 , 后面是淋浴房和洗衣间 。
二层设计了四个卧室 , 主卧带淋浴房 , 公卫位置不变 , 厅屋上方的位置设计了成了起居室 , 外面是一个小阳台 。
三层只设计了三个卧室和一间起居室 , 前面一个小露台和左右各一个大面积露台 。这样设计的三层欧式别墅 , 不止外观吸引人 , 还有8间卧室4个卫生间 , 住起来也很舒适 。
点赞关注 , 我可以让你少花钱 , 建个更好的房子 。
- 冬天|一直忘了提醒你,这特效鲫鱼饵,连用三十年不失效,冬天用最合适
- |现在流行厨房不做吊柜了,都这种设计,既省钱又不占地
- |占地只有90平,这样的农村现代别墅,35万的存款能盖起来吗?
- 制冷剂|占地冰箱无论放哪,都不要挨着4样东西,否则易发生危险
- 混搭|户型小没办法做书房,老公买胶囊书房只占地1.2㎡,隔音一级棒
- |这个想法好,晾衣服不用阳台,窗前装折叠杆,收放自如不占地面1㎡
- 海岛|最小的海景房:一栋占地约4㎡,顶多塞进4名游客,属于永久产权
- 古镇|世界最大皇宫,占地四百万平相当于五百个足球场,坐拥89座大殿
- |等我有新房子,厨房绝不装橱柜!学学聪明人这么装,整洁不占地
- 木工|资深老师傅的忠告:这15个地方别乱装,占地方还浪费钱简直添堵
