|外国15㎡窄公寓,储物空间多还放下双人床,厨卫也能共用?

文章图片

文章图片

文章图片

文章图片

文章图片

文章图片
在买房不易的当下 , 小户型房受到了不少人追捧 , 其中小公寓也成了不少年轻人最爱的户型 。 但是如何让小公寓实现空间最大化利用 , 反而也成了一大难题 。
当然户型虽小 , 住着舒服才重要 。 所以今天给大家分享一个外国小公寓设计 , 虽然屋子只有15平方米 , 却五脏俱全 , 甚至达到了50平米的效果!值得所有小户型学习!
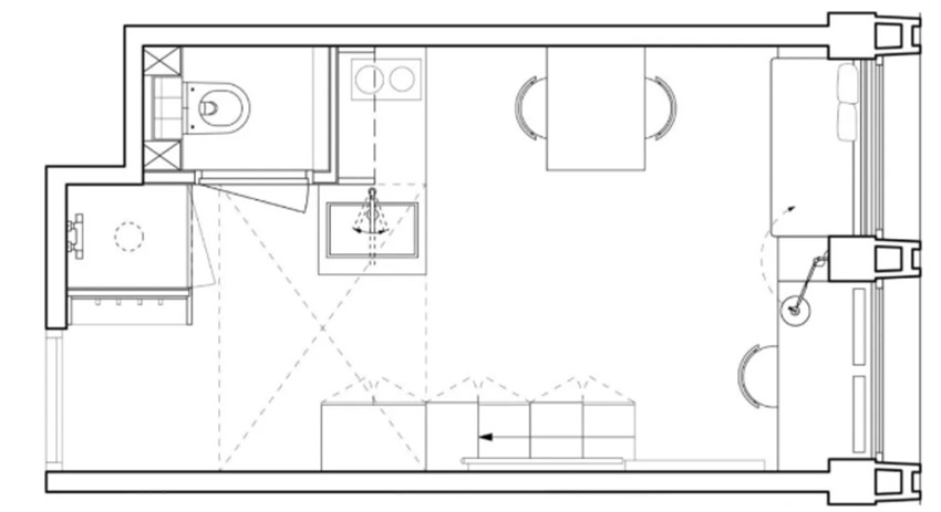
这间公寓位于荷兰鹿特丹 , 前身是一个写字楼的办公间 , 所以面积比较狭窄 , 只有15平米 , 不过层高足够 , 房间尽头是飘窗 , 采光也不错 , 所以设计师利用了层高优势 , 将格局重新划分 , 把厨房卫浴 , 卧室和工作区全给装下 。
进门左手是玄关 , 头顶则是卧室 。 为了居住舒适 , 在大门的2米处高度设置了跃层 , 占据总面积的三分之一 , 从而实现卧室的放大 , 睡在上面也能满足伸展和活动 , 住着不憋屈 。
下方柜体能作为楼梯用 , 也能当成衣柜和储物间 , 方便日常物品的存放;墙上的黑色隔板 , 既是装饰也是扶手 , 设计细节很贴心 。
卧室下方是小卫生间 , 马桶和淋浴间各自独立 , 而为了节省空间 , 特意将厨房和卫生间合一 , 即水槽共用 , 既能作为洗漱区 , 也能在平时做饭时使用 。
【|外国15㎡窄公寓,储物空间多还放下双人床,厨卫也能共用?】
上方吊挂的镜子是双用镜 , 朝向卫生间的一侧贴上镜面 , 作为梳妆镜用 , 厨房一侧贴上黑板 , 日常也能用来记事 , 一举两得 。
厨房设计也很简单 , 塞下嵌入式烤箱和碗橱 , 满足使用需求即可 。
厨房旁边是宽敞的客厅 , 摆放一张小桌子 , 既能当餐桌也能当办公桌;
临近靠窗位置 , 特意放置了小型榻榻米 , 可以作为每日休闲的区域;连剩余的角落也设计成了小型读书区 , 真是榨干每一平米 。
小公寓面积不大 , 但利用层高优势打造出小跃层 , 同时满足了功能性和舒适性 , 尤其是厨卫共用的新理念 , 省空间又是实用 , 让小空间瞬间变大 , 我们不妨也学起来 。
(图片来源于网络 , 如有侵权立即删除)
- 屋子里|浑身像无数个螃蟹脚,价值十分珍贵,如今外国人已开始重视
- 老年小妙招|53平精美小公寓,清新典雅,收纳充足,美与实用性并存的典范!
- |40㎡单身公寓,还有一个小花园,住在这才是真正的单身贵族生活!
- 单身公寓|奋斗8年终于拥有属于自己的房子,58㎡一室一厅单身公寓,知足了
- |30㎡单身公寓,这逆天的设计不服不行,让蜗居也能有豪宅感!
- |55岁中年夫妻的35㎡公寓,配色透着高级的气息,简约而不简单
- |奶奶和孙女的55㎡小户型公寓,“去客厅化”设计,住着真舒心
- |国外46平小公寓,木色搭配绿植,营造轻松惬意、温暖舒适的小窝!
- 女孩|30岁单身女孩的59㎡公寓,“横厅”设计,住过才知道多舒适
- |为什么外国人家里不做鞋柜?他们都这样设计,不得不感叹太聪明了
