|给父母住的新房,她以反向思维来设计,反而很显质感!

文章图片

文章图片

文章图片

文章图片

文章图片

通常情况下给老人居住的新房 , 在整体色调的控制上 , 无非有这么两种情况 , 一种是以简约的方式来做搭配 , 以营造出轻松的居住环境 , 而另一种则是以传统的方式 , 打造出深厚的韵味 , 使家里自然的飘出一种书香气息 。
不过本期给大家带来的这套案例 , 业主却放弃了常规的处理方式 , 选择以反向的思维来设计 。 或许从整体效果上 , 会让人感觉怪怪的 , 但就质感这块来说 , 却很好的表现了出来 , 也显得十分高级 。
原始结构图
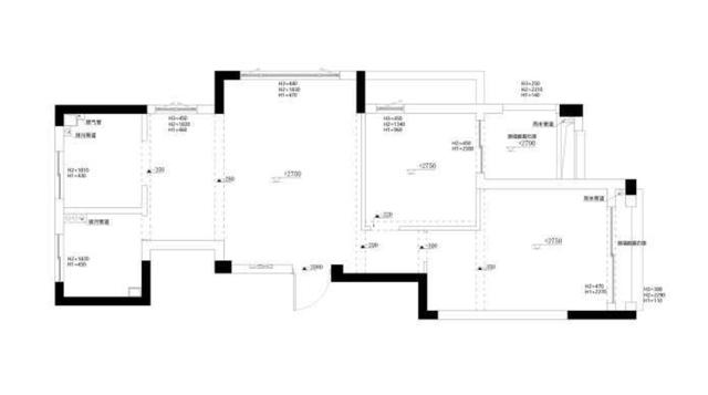
新房室内面积98㎡ , 两室两厅的户型结构 , 屋主为一对老人 , 所以在方案以及功能性设计上 , 完全是围绕两个老人的需求来做的 。 甚至在房间的处理上 , 次卧也完全是以留空的方式来考虑的 , 并没有做成房间 , 以方便业主(屋主的女儿)回家时有一个房间可居住 。 再结合业主的想法很多 , 整个方案变动的地方也比较多 。
平面方案图【|给父母住的新房,她以反向思维来设计,反而很显质感!】
1、考虑到次卧用不到 , 再加上客厅没有沙发墙 , 所以在客厅的布局上 , 是以45度转角的方式来规划的 。 虽说牺牲了一点次卧空间 , 但却可以用衣帽间来弥补 , 所以影响并不大 。
2、考虑到厨房的空间很大 , 且为了厨卫及餐厅有一个更好的动线 , 就将厨房空间做了缩小处理 。 毕竟家里只有两个老人居住 , 厨房小一点也完全是够用的 。
3、由于老人有收藏爱好 , 所以家里的展示柜以及收纳柜一定要多 。
4、次卧剩余的空间暂时留空 , 方便后期随家里的情况做调整 。
进门玄关
其实从一进门的效果就能看出 , 业主所用的反思维设计 , 就是不以常规的方式给顶部刷大白 , 而是选择了灰色的艺术涂料刷在顶部 。 这样做的原因主要有两点 , 第一点就是乳胶漆的质感 , 没有艺术漆料来得明显 。
第二点就是在硬装以简约风的情况下 , 若给顶部刷大白 , 那么会造成一种轻飘飘感;所以选择灰色来表现 , 既可以表现出层次感 , 又可以在无形中提高装修档次 。 同时 , 给进门地面铺上灰色的地砖 , 也与顶部起到了呼应作用 , 并起到了划分区域的功能 。
进门鞋柜是以内嵌的方式设计在了右手边 , 并在结构的处理上也非常人性化 。 比如考虑到老人换鞋不太方便 , 就设计了一个抽屉式的换鞋凳 , 这样既方便了使用 , 也可以用来收纳小东西 。 而在质感的表现上 , 不管是黑色边框的玻璃门 , 还是地面的水磨石 , 都足以体现出了效果 。
客厅
其实以45度的方式来给客厅布局 , 在小户型当中是比较常见的 , 而在这套案例中 , 虽说本可以不这样设计 , 但从效果上来看 , 却还是挺有特点的 。 再者 , 这个处理也尽量做到了客餐厅的通透性 , 给人一种很宽敞的视觉感 。
- |她家新房装修很成功,保洁做完,还没家具就很漂亮,太羡慕了!
- |这样的三层豪华大气欧式别墅,村里盖一栋,父母都为你自豪
- 设计师|一个家庭主妇负责装修新房,不请设计师,完工后的效果还不错!
- 老年小妙招|她规划半年的新房,收纳设计堪称亮点,效果非常接地气!
- |参观张彬彬如今住的豪宅,室内装修相当普通,喜欢圈养小动物
- 木工|新房装修,刚到木工阶段,400一天,晒晒!
- |三口之家的新房,120㎡轻奢风格,精致又优雅,享受现代舒适生活
- |老妈找亲戚装新房,122㎡硬装花21万,影视墙就1万多,亏么?
- |新房装修监工水电,只要记住8步骤,就算小白也不怕被唬
- |第一次装修新房,花了3个月的时间,做了简约风格的设计,很漂亮
